Villa singola in vendita

Carpi, Via puccini giacomo
€ 490.000
7 locali 7 locali
350 Mq 350 Mq
3 bagni 3 bagni

Villa singola in vendita

Carpi, Via puccini giacomo

Descrizione annuncio

VILLA SINGOLA - ZONA MUSICISTI

In una delle zone residenziali più ricercate della città, proponiamo in vendita una villa indipendente con giardino.

La proprietà si sviluppa su due livelli ed è circondata da un giardino perimetrale piantumato. Completa la soluzione un garage con ulteriore posto auto scoperto, mentre un ampio terrazzo e un balcone offrono piacevoli spazi esterni al primo piano.

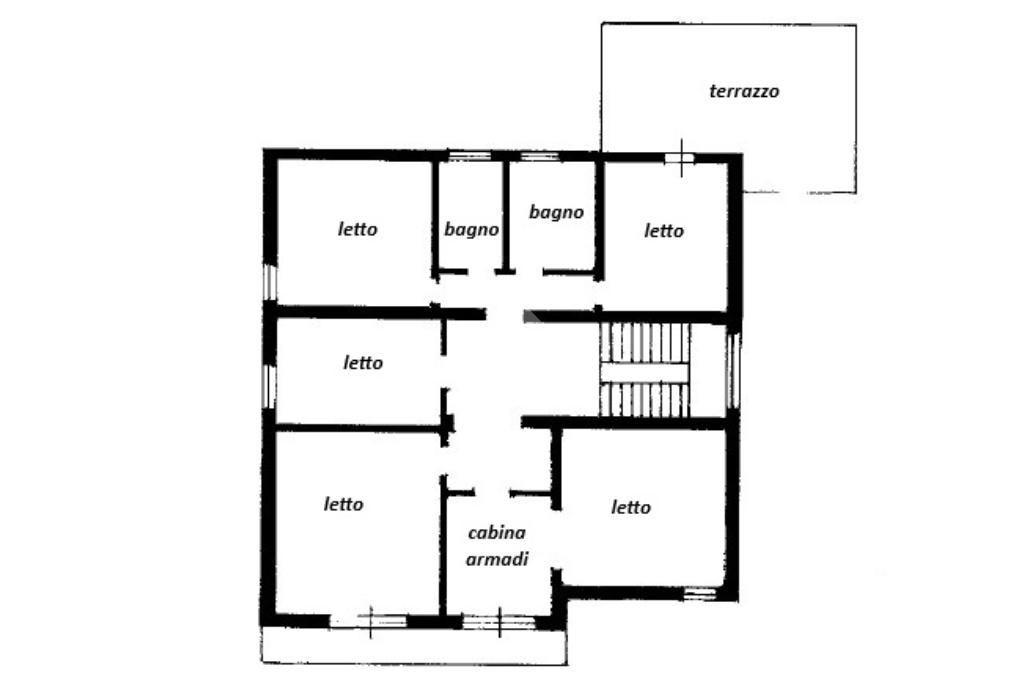
Piano terra: salone doppio con camino, cucina abitabile, bagno, lavanderia e locale tecnico

Piano primo: cinque camere da letto, due bagni, balcone e terrazzo.

La Zona Musicisti si distingue per il suo carattere riservato e verdeggiante, a pochi passi dal centro. L'offerta immobiliare in quest'area è particolarmente limitata, rendendo questa opportunità di notevole interesse.

L'immobile necessita di interventi di ristrutturazione parziale degli interni, offrendo l'opportunità di personalizzare gli spazi secondo le proprie esigenze abitative, potendo creare all'occorrenza anche una comoda bifamigliare.

Per ogni informazione : 059.650521 numero attivo anche come whatsapp.

Mostra tutto

Nelle vicinanze

Trasporto pubblico Trasporto pubblico
stazione di Carpi
stazione di Carpi
170 m
Carpi Stazione FS
Carpi Stazione FS
100 m
Alghisi 2
Alghisi 2
320 m
Ricariche auto elettriche Ricariche auto elettriche
Carpi Cantina della Pioppa | EnelX
260 m
Carpi Carducci | EnelX
320 m
Stazione di Carpi | EnelX
380 m
Carpi Giulio Cesare | Enel X
610 m
Carpi Baracchi | EnelX
1,0 Km
Scuole Scuole
Scuola Media Statale “Alberto Pio”
870 m
Liceo Scientifico Statale "M. Fanti"
1,5 Km
Scuola Primaria Statale “Giovanni Pascoli”
1,6 Km
Istituto Tecnico Industriale Statale "L. Da Vinci"
1,6 Km
Centro di Formazione Professionale "Nazareno"
1,7 Km
Farmacia Farmacia
Farmacia dell'Assunta
330 m
San Bernardino
400 m
Farmacia del popolo
950 m
Farmacia della Salute
1,4 Km
Ospedali Ospedali
Ospedale Ramazzini
1,3 Km
Supermercati Supermercati
Conad
1,2 Km
Supermercati
1,3 Km
MD
1,6 Km
EuroSpin
2,0 Km
Eurospin
2,0 Km
Bar Bar
Mattatoio
410 m
Cookies
430 m
Bar
960 m
Bar Scazza 24H Non Stop
1,9 Km
Ristoranti Ristoranti
Follie Di Sapori
530 m
Ristorante La Mistica
560 m
Ristoranti
650 m
Clorofilla
1,1 Km
Lo Zodiaco
1,3 Km
Mostra tutto

Caratteristiche

Rif.:
61142082
Piano:
Basso di 2
Totale piani:
2
Box:
1
Posti auto:
1
Balconi:
1
Mostra tutto
Prezzo Prezzo
€ 490.000
Rata mutuo Rata mutuo
€ 2.326 / mese
Spese annue Spese annue
€ 1
Proponi il tuo prezzoProponi il tuo prezzo

Classe Energetica

G
G
G
G
G
G
G
G
G
EP globale non rinnovabile:
1.00 kW h/m² anno
EP globale rinnovabile:
1.00 kW h/m² anno
EP invernale del fabbricato:
EP estiva del fabbricato:
Anno di costruzione:
1970
Riscaldamento:
Autonomo
Tipo impianto:
A radiatori
Tipo alimentazione:
Metano

Ti interessa visionare l'immobile?

Fissa un appuntamento  Fissa un appuntamento

Richiedi informazioni

Clicca su Leggi per aprire l'informativa
* Questi campi sono obbligatori

Calcola il tuo mutuo

Semplice e senza impegno
Anticipo

( % )
Mutuo

( % )

pochi semplici passi

inserisci i tuoi dati
Questionario completato
Grazie per aver richiesto un appuntamento senza impegno con un nostro Consulente del Credito e Assicurativo.

Hai inserito correttamente tutti i dati necessari e a breve riceverai una e-mail con un link da convalidare per inviare i tuoi dati.
Affiliato
Agenzia Carpicentro Srl
Corso Cabassi, 40/42 41012 Carpi (MO)

Il nostro staff


  • Fabrizio Pavignani
    Affiliato

  • Cristina Rainero
    Responsabile

  • Massimo Garuti
    Responsabile

  • Alessandro Bartoli
    Collaboratore

  • Andrea Tesei
    Collaboratore
Corso Cabassi, 40/42 41012 Carpi (MO)
Zona: Carpi Centro Storico - Musicisti - Ospedale - Berengario
Mostra su mappa
Orari: dal lunedì al venerdì 09.00-13.00 e 15.30- 19.30; sabato 09.00-13.00
Affiliato
Agenzia Carpicentro Srl
Corso Cabassi, 40/42 41012 Carpi (MO)

2026 Tecnocasa Franchising S.p.A. - P. IVA 08365160152 - Via Monte Bianco 60/A 20089 Rozzano (MI). Ogni agenzia ha un proprio titolare ed è autonoma. Privacy policy | Policy utilizzo | Cookie policy