Villa singola in vendita

Carpi, Via puccini giacomo
€ 500.000
7 locali 7 locali
350 Mq 350 Mq
3 bagni 3 bagni

Villa singola in vendita

Carpi, Via puccini giacomo

Descrizione annuncio

Villa Singola - Zona Musicisti

In Zona Musicisti, una delle aree più ricercate e prestigiose della città, proponiamo in vendita una magnifica villa singola che rappresenta un perfetto equilibrio tra eleganza e funzionalità.

Questa importante proprietà di circa 350 mq commerciali si sviluppa su due livelli principali, offrendo spazi generosi e ben distribuiti per ogni esigenza abitativa.

Piano Terra
Il livello d'ingresso presenta un'ampia zona giorno, il soggiorno misura oltre 50 mq, uno spazio ideale per la convivialità. Completano il piano una comoda cucina abitabile, un bagno di servizio, una lavanderia e una versatile stanza pluriuso che può adattarsi a diverse necessità: studio, sala hobby o spazio per gli ospiti.

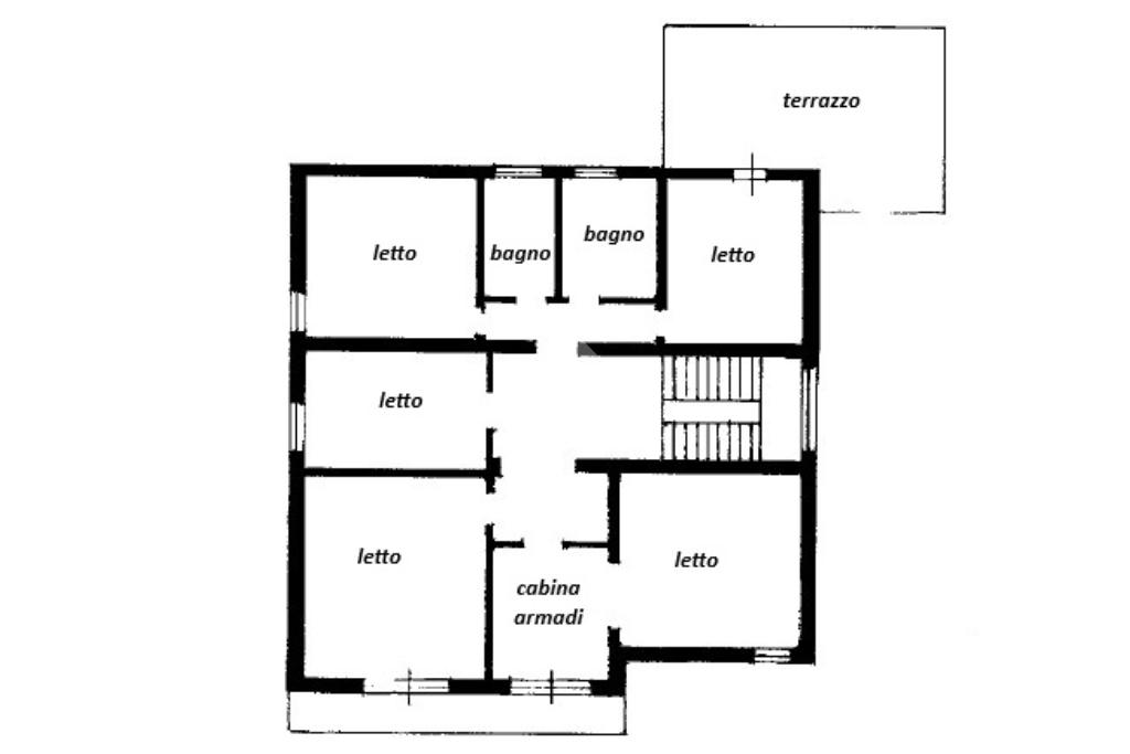
Piano Superiore
La zona notte ospita 5 spaziose camere da letto matrimoniali, tutte caratterizzate da ottime metrature e luminosità naturale. Due bagni garantiscono la massima comodità per tutta la famiglia. Un balcone si estende lungo tutto il fronte strada, mentre il terrazzo di quasi 30 mq rappresenta un ulteriore e godibile spazio all’aperto.

Sottotetto
Un ampio e alto sottotetto completa la proprietà, offrendo ulteriori possibilità di utilizzo e ampliamento futuro.

La villa sorge su un generoso lotto di circa 500 mq, garantendo privacy e spazio verde in una delle zone più ambite della città, dove tranquillità residenziale e prestigio si fondono perfettamente.

Per maggiori informazioni e per organizzare una visita alla proprietà : 059650521

Mostra tutto

Nelle vicinanze

Trasporto pubblico Trasporto pubblico
stazione di Carpi
stazione di Carpi
170 m
Carpi Stazione FS
Carpi Stazione FS
100 m
Alghisi 2
Alghisi 2
320 m
Ricariche auto elettriche Ricariche auto elettriche
Carpi Cantina della Pioppa | EnelX
260 m
Carpi Carducci | EnelX
320 m
Stazione di Carpi | EnelX
380 m
Carpi Giulio Cesare | Enel X
610 m
Carpi Baracchi | EnelX
1,0 Km
Scuole Scuole
Scuola Media Statale “Alberto Pio”
870 m
Liceo Scientifico Statale "M. Fanti"
1,5 Km
Scuola Primaria Statale “Giovanni Pascoli”
1,6 Km
Istituto Tecnico Industriale Statale "L. Da Vinci"
1,6 Km
Centro di Formazione Professionale "Nazareno"
1,7 Km
Farmacia Farmacia
Farmacia dell'Assunta
330 m
San Bernardino
400 m
Farmacia del popolo
950 m
Farmacia della Salute
1,4 Km
Ospedali Ospedali
Ospedale Ramazzini
1,3 Km
Supermercati Supermercati
Conad
1,2 Km
Supermercati
1,3 Km
MD
1,6 Km
EuroSpin
2,0 Km
Eurospin
2,0 Km
Bar Bar
Mattatoio
410 m
Cookies
430 m
Bar
960 m
Bar Scazza 24H Non Stop
1,9 Km
Ristoranti Ristoranti
Follie Di Sapori
530 m
Ristorante La Mistica
560 m
Ristoranti
650 m
Clorofilla
1,1 Km
Lo Zodiaco
1,3 Km
Mostra tutto

Caratteristiche

Rif.:
61113223
Piano:
Su più livelli di 1
Totale piani:
1
Box:
1
Posti auto:
1
Balconi:
1
Mostra tutto
Prezzo Prezzo
€ 500.000
Rata mutuo Rata mutuo
€ 2.219 / mese
Spese annue Spese annue
€ 1
Proponi il tuo prezzoProponi il tuo prezzo

Classe Energetica

G
G
G
G
G
G
G
G
G
EP globale non rinnovabile:
1.00 kW h/m² anno
EP globale rinnovabile:
1.00 kW h/m² anno
EP invernale del fabbricato:
EP estiva del fabbricato:
Anno di costruzione:
1970
Riscaldamento:
Autonomo
Tipo impianto:
A radiatori
Tipo alimentazione:
Metano

Ti interessa visionare l'immobile?

Fissa un appuntamento  Fissa un appuntamento

Richiedi informazioni

* Questi campi sono obbligatori

Calcola il tuo mutuo

Semplice e senza impegno
Anticipo

( % )
Mutuo

( % )

pochi semplici passi

inserisci i tuoi dati
Questionario completato
Grazie per aver richiesto un appuntamento senza impegno con un nostro Consulente del Credito e Assicurativo.

Hai inserito correttamente tutti i dati necessari e a breve riceverai una e-mail con un link da convalidare per inviare i tuoi dati.
Affiliato
Agenzia Carpicentro Srl
Corso Cabassi, 40/42 41012 Carpi (MO)

Il nostro staff


  • Fabrizio Pavignani
    Affiliato

  • Cristina Rainero
    Responsabile

  • Massimo Garuti
    Responsabile

  • Alessandro Bartoli
    Collaboratore

  • Federica Besutti
    Coordinatrice

  • Simone Losi
    Collaboratore

  • Andrea Tesei
    Collaboratore
Corso Cabassi, 40/42 41012 Carpi (MO)
Zona: Carpi Centro Storico - Musicisti - Ospedale - Berengario
Mostra su mappa
Orari: dal lunedì al venerdì 09.00-13.00 e 15.30- 19.30; sabato 09.00-13.00
Affiliato
Agenzia Carpicentro Srl
Corso Cabassi, 40/42 41012 Carpi (MO)

2025 Tecnocasa Franchising S.p.A. - P. IVA 08365160152 - Via Monte Bianco 60/A 20089 Rozzano (MI). Ogni agenzia ha un proprio titolare ed è autonoma. Privacy policy | Policy utilizzo | Cookie policy