Bilocale in affitto

Carpi, Viale guido fassi
€ 700 / mese
2 locali 2 locali
35 Mq 35 Mq
1 bagno 1 bagno

Bilocale in affitto

Carpi, Viale guido fassi

Descrizione annuncio

Per ulteriori informazioni contattare il responsabile affitti Alessandro al 3463559551

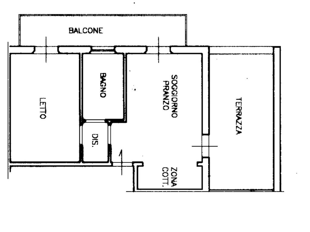
BILOCALE IN ZONA CENTRO

In zona centro storico di Carpi proponiamo bilocale, di circa 40mq, al secondo piano con ascensore. L'immobile è composto da sala con angolo cottura, bagno, 2 balconi, camera matrimoniale ed un box auto al piano terra. ARREDATO COMPLETAMENTE, MANCA SOLO LA LAVATRICE.

Canone mensile di euro 700 + circa 600euro annui di spese condominiali.

CONTRATTO 4+4 IMPOSTA DI REGISTRO, CON ADEGUAMENTO ISTAT.

Richiesti profili referenziati con contratto di lavoro, no affitti brevi. Disponibile da subito.

Per ulteriori informazioni contattare il responsabile affitti Alessandro al 3463559551

Mostra tutto

Nelle vicinanze

Trasporto pubblico Trasporto pubblico
stazione di Carpi
stazione di Carpi
890 m
Peruzzi Autostazione
Peruzzi Autostazione
420 m
Carpi Autostazione
Carpi Autostazione
490 m
Ricariche auto elettriche Ricariche auto elettriche
Carpi Baracchi | EnelX
350 m
Carpi Carducci | EnelX
570 m
Carpi Benassi | EnelX
750 m
Stazione di Carpi | EnelX
820 m
Carpi Cantina della Pioppa | EnelX
950 m
Scuole Scuole
Scuola Media Statale “Alberto Pio”
180 m
Scuola Primaria Statale “Giovanni Pascoli”
660 m
Liceo Scientifico Statale "M. Fanti"
670 m
Istituto Tecnico Industriale Statale "L. Da Vinci"
780 m
Centro di Formazione Professionale "Nazareno"
800 m
Farmacia Farmacia
Farmacia della Salute
510 m
Farmacia dell'Assunta
710 m
Farmacia del popolo
870 m
San Bernardino
970 m
Ospedali Ospedali
Ospedale Ramazzini
430 m
Supermercati Supermercati
Conad
820 m
EuroSpin
1,2 Km
Eurospin
1,2 Km
Famila
1,4 Km
MD
1,5 Km
Bar Bar
Bar
160 m
Cookies
460 m
Mattatoio
490 m
Bar Scazza 24H Non Stop
990 m
Ristoranti Ristoranti
Clorofilla
250 m
Follie Di Sapori
480 m
Ristorante La Mistica
480 m
Ristoranti
530 m
Lo Zodiaco
920 m
Mostra tutto

Caratteristiche

Rif.:
61113914
Piano:
1 di 2 (Piano basso)
Box:
1
Balconi:
1
Terrazzi:
1
Camere da letto:
1
Mostra tutto
Prezzo Prezzo
€ 700 / mese
Spese annue Spese annue
€ 1

Classe Energetica

G
G
G
G
G
G
G
G
G
EP globale non rinnovabile:
1.00 kW h/m² anno
EP globale rinnovabile:
1.00 kW h/m² anno
EP invernale del fabbricato:
EP estiva del fabbricato:
Anno di costruzione:
1970
Riscaldamento:
Autonomo
Tipo impianto:
A radiatori
Tipo alimentazione:
Metano

Ti interessa visionare l'immobile?

Fissa un appuntamento  Fissa un appuntamento

Richiedi informazioni

* Questi campi sono obbligatori
Affiliato
Agenzia Carpicentro Srl
Corso Cabassi, 40/42 41012 Carpi (MO)

Il nostro staff


  • Fabrizio Pavignani
    Affiliato

  • Cristina Rainero
    Responsabile

  • Massimo Garuti
    Responsabile

  • Alessandro Bartoli
    Collaboratore

  • Federica Besutti
    Coordinatrice

  • Simone Losi
    Collaboratore

  • Andrea Tesei
    Collaboratore
Corso Cabassi, 40/42 41012 Carpi (MO)
Zona: Carpi Centro Storico - Musicisti - Ospedale - Berengario
Mostra su mappa
Orari: dal lunedì al venerdì 09.00-13.00 e 15.30- 19.30; sabato 09.00-13.00
Affiliato
Agenzia Carpicentro Srl
Corso Cabassi, 40/42 41012 Carpi (MO)

2025 Tecnocasa Franchising S.p.A. - P. IVA 08365160152 - Via Monte Bianco 60/A 20089 Rozzano (MI). Ogni agenzia ha un proprio titolare ed è autonoma. Privacy policy | Policy utilizzo | Cookie policy